Alter Charme trifft auf Moderne: großzügige Mietwohnung mit flexibel nutzbarem Raumangebot
47506 Neukirchen-Vluyn, Dachgeschosswohnung zur Miete







Kontaktdaten
-
NameHerr Felix Welke
-
AnschriftPastoratstraße 5
47506 Neukirchen-Vluyn -
E-Mail
-
Telefon
Ausstattung / Merkmale
- ✓ Gäste-WC
- ✓ WG-geeignet
Objektdaten
-
Objekt-ID166730997
-
ObjekttypenDachgeschosswohnung, Wohnung
-
AdresseAm Ophülsgraben 59
47506 Neukirchen-Vluyn -
Etage1
-
Etagen im Haus1
-
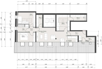
Wohnfläche ca.111 m²
-
Zimmer4
-
Schlafzimmer3
-
Badezimmer1
-
HeizungsartFußbodenheizung
-
Baujahr2025
-
ZustandErstbezug
-
Ausstattunggehoben
-
Haustierenicht erlaubt
-
GaragenstellplatzStellplatzmiete: 60,00 EUR (Anzahl: 1)
-
Kaltmiete1.221,00 EUR
-
Nebenkosten277,50 EUR
-
Heizkostenin den Nebenkosten enthalten
-
Warmmiete1.498,50 EUR
Objektbeschreibung
Beschreibung
Das Kernsanierungsprojekt am Ophülsgraben 59 in Neukirchen-Vluyn wird auf einem traditionellen Vierkanthof, der seit über 100 Jahren im Familienbesitz der Eigentümer ist, realisiert.
Der Hof steht auf einem herausragenden Grundstück direkt im Grünen und mit traumhaftem Blick über die angrenzenden Felder – eine absolute Wohlfühloase!
Es handelt sich damit um eine beliebte und erholsame Randlage. Ein hochattraktiver Standort in einer der aufstrebensten Städte am linken Niederrhein.
Zur Planung und Koordinierung des Projekts wurde von den Investoren das bereits seit 1973 bestehende, lokale Architekturbüro Sanden engagiert, um ein behutsame, energetische
Sanierung und Neugestaltung im Rahmen der vielseitigen Möglichkeiten zu gewährleisten.
Moderne Elementen sollten mit dem historischen Charme im Einklang ein harmonisches Gesamtbild abgeben. Alle weiteren Gewerke haben sich in zahlreichen Bauprojekten bewährt.
Durch eine sorgfältige Planung, eine solide Bauausführung in einem zuverlässigen Team von
Gewerken und persönlicher Prüfung durch kreative Architekten, finden Sie die Qualitätsansprüche in jedem Winkel der Immobilie wieder.
Eine barrierearme Bauweise in vielen Gebäudeteilen, hochwertige Ausstattungsmerkmale und ein besonderer Kulturhof bieten Mieterinnen und Mietern einen Lebensraum, der sich an ihre Lebensumstände anpasst.
Die fossilfreie Energieversorgung durch eine Wärmepumpe sorgt seit Jahren in Neu- und Umbauprojekten für geringe Nebenkosten und eine umweltbewusste Energieversorgung.
Ausstattung
- Nur 4 Wohnungen im Gebäude
- Lichtdurchfluteter, heller Grundriss
- 3 flexibel nutzbare Schlafzimmer (z.B. auch Büro zu Homeoffice-Zwecken möglich)
- Großzügiges Wohn-/Esszimmer mit offener Wohnküche
- Moderne Gestaltung – u.a. moderne, großformatige Fliesen bzw. hochwertiger Vinylboden in warmer Holzoptik sowie moderne, weiße Innentüren
- Besonderheiten wie eine Galerie oder mehrere Ankleide- / Abstellräume
- Historische Fassade mit Wärmedämmung
- niedrige Heizkosten durch Einbau einer
Wärmepumpe
- Video-Gegensprechanlage
- elektrische Rollladen mit
Schaltersteuerung
- Dreifachverglasung
- Überdurchschnittliche Helligkeit
- gefliester Duschbereich (barrierearm)
- separates Gäste-WC
- exklusive Garage auf dem Hof
Sonstiges
BITTE VORAB LESEN:
Da der Eigentümer leider kein Mietverhältnis eingehen möchte, wenn die Mietzahlung durch Dritte (wie z.B. das Jobcenter) gedeckt wird, können Anfragen in dieser Form nicht berücksichtigt werden.
Es können darüber hinaus nur Mietinteressenten berücksichtigt werden, die vollständige Angaben hinterlassen. Bitte halten Sie Ihre Bewerbungsunterlagen (z.B. Gehaltsabrechnungen und Schufa) bereit.
_____
Die Darstellung im Inserat beruht auf den Angaben des Vermieters und der zur Verfügung stehenden Unterlagen. Für die Richtigkeit und Vollständigkeit wird keine Haftung übernommen. Es gelten unsere Allgemeinen Geschäftsbedingungen.
Lage
Neukirchen-Vluyn liegt ideal zwischen den Städten Krefeld und Moers und gehört als kreisangehörige Stadt des Kreises Wesel zum Regierungsbezirk
Düsseldorf.
Trotz der ruhigen Umgebung ist Neukirchen-Vluyn hervorragend angebunden. Über die nahegelegene A40 und die A57 erreichen Sie schnell die
umliegenden Städte am Niederrhein, im Ruhrgebiet sowie den Düsseldorfer Raum. Die Anbindung an den öffentlichen Nahverkehr ist mit Buslinien, die
regelmäßig verkehren und einen Anschluss an das Netz des VRR bieten, ebenfalls gut.
NAHVERSORGUNG
Supermarkt (1,8 km)
Bäckerei (1,8 km)
Friseur (1,8 km)
Bank (1,8 km)
Restaurant (300 m)
Post (1,8 km)
BILDUNG
Kindergarten (2,4 km)
Grundschule (1,9 km)
Schulzentrum (6,2 km)
Hochschule (11,8 km)
GESUNDHEIT
Allgemeinmediziner (1,8 km)
Apotheke (1,8 km)
Zahnarztpraxis (1,7 km)
Tierarzt (2,3 km)
Physiotherapie (2,3 km)
Andere Ärzte (1,8 km)
MOBILITÄT
Bus-Haltestelle (1,4 km)
Bahnhof (7,1 km)
Autobahn (2,8 km)
Flughafen Weeze (44,5 km)
Flughafen Düsseldorf (28,2 km)
SPORT UND FREIZEIT
Tennis-Club (2,0 km)
Golfplatz (2,8 km)
Fußball (2,4 km)
Fitnessstudio (1,8 km)
Freibad (4,4 km)
WEITERE ANGEBOTE
Halde Nordddeutschland (7,1 km)
Schloss Bloemersheim (6,3 km)
Museum und Archiv Kulturhalle (4,6 km)
Sport- und Freizeitpark Klingerhuf (3,6 km)
Sie sehen gerade einen Platzhalterinhalt von Google Maps. Um auf den eigentlichen Inhalt zuzugreifen, klicken Sie auf die Schaltfläche unten. Bitte beachten Sie, dass dabei Daten an Drittanbieter weitergegeben werden.
Mehr Informationen